Компания Amusement Logic вновь объединила усилия с Lulu Group International для создания нового семейного развлекательного центра под брендом Funtura. Это сотрудничество, седьмое по счету между двумя компаниями, укрепляет стратегический альянс и подтверждает уверенность розничного гиганта в опыте и креативности испанской команды, несомненно, являющейся международным лидером в проектировании развлекательных и досуговых пространств.
Проект, находящийся в настоящее время в разработке, представляет собой комплексную концепцию, сочетающую инновации и развлечения для создания незабываемых впечатлений. Согласно предварительным планам, дизайн пространств отражает мультигенерационный подход, обеспечивая привлекательные места для детей, подростков и взрослых.
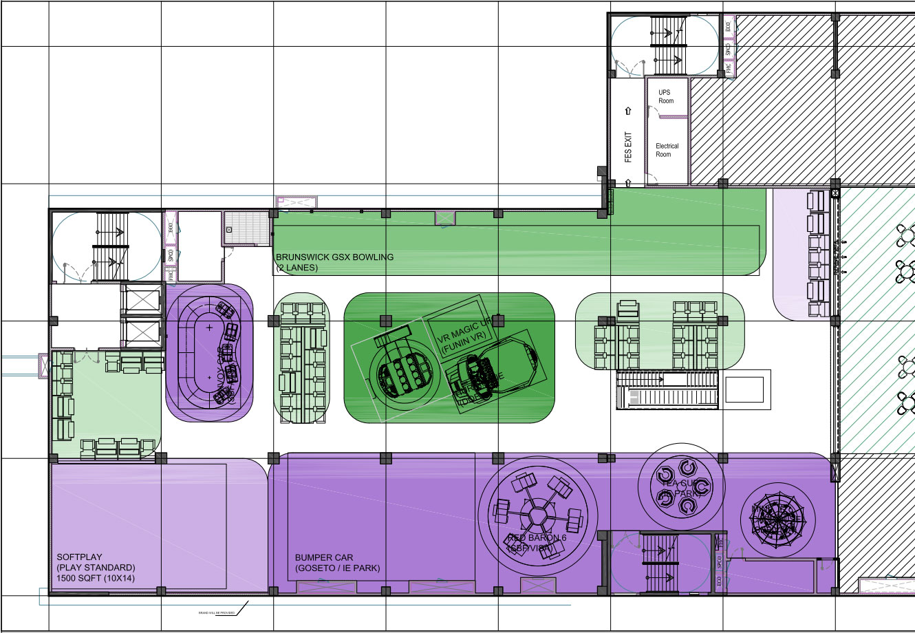
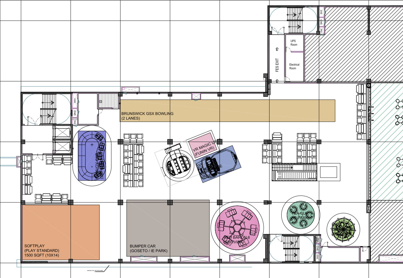
К числу наиболее заметных элементов дизайна относятся:
— Боулинг: в центре предусмотрены две дорожки в современном боулинг-центре, спроектированном как место для отдыха и активного времяпрепровождения для групп и семей;
— Стандартные аттракционы, с широким выбором симуляторов, аркадных игр и игр на ловкость, сбалансированных между сложностью и доступным развлечением;
— Трасса для бамперных машинок: переосмысленная классика, которая обещает смех и прилив адреналина в безопасной и динамичной обстановке;
— Игровая зона виртуальной реальности;
— Для самых маленьких: игровая зона с мягким покрытием, карусель и другие вращающиеся аттракционы, а также аттракцион «Автомобильный кортеж».
Помимо каталога аттракционов, Amusement Logic делает акцент на интуитивном архитектурном и пространственном дизайне, способствующем свободному перемещению, безопасности и наслаждению совместными моментами. Планировка разделяет и сегментирует впечатления по интенсивности или типу, тем самым оптимизируя опыт посетителей с момента их прибытия.
Источники в компании уверяют, что «этот новый проект с Lulu Group International является свидетельством нашего общего видения: создавать места досуга, которые представляют собой нечто большее, чем просто набор аттракционов, — пространства, где укрепляются семейные узы, отмечаются важные моменты и испытываются эмоции в обстановке, продуманной до мелочей».
Это седьмое сотрудничество между Amusement Logic и Lulu Group International знаменует собой важный этап в двусторонних отношениях, а также укрепляет позиции бренда Funtura на международной арене как синоним качественных семейных развлечений. Повторный успех этих проектов подчеркивает способность понимать потребности мирового рынка и воплощать их в жизнеспособные, привлекательные и коммерчески успешные проекты.






